• About
  • Work
  • SUMMARY
  • RESUME
  • Contact
CUE CHOI
  • About
  • Work
  • SUMMARY
  • RESUME
  • Contact

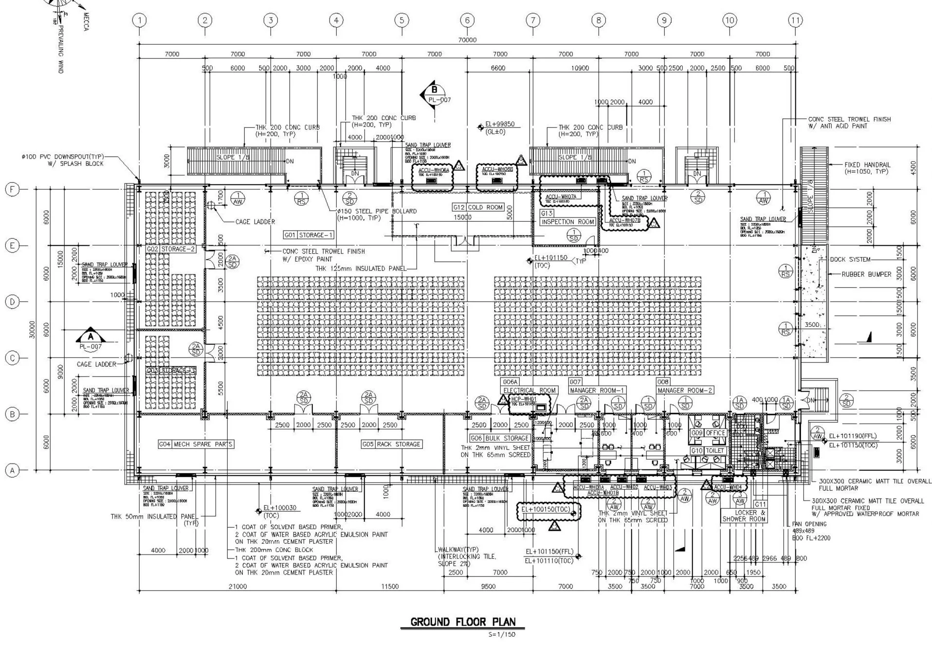
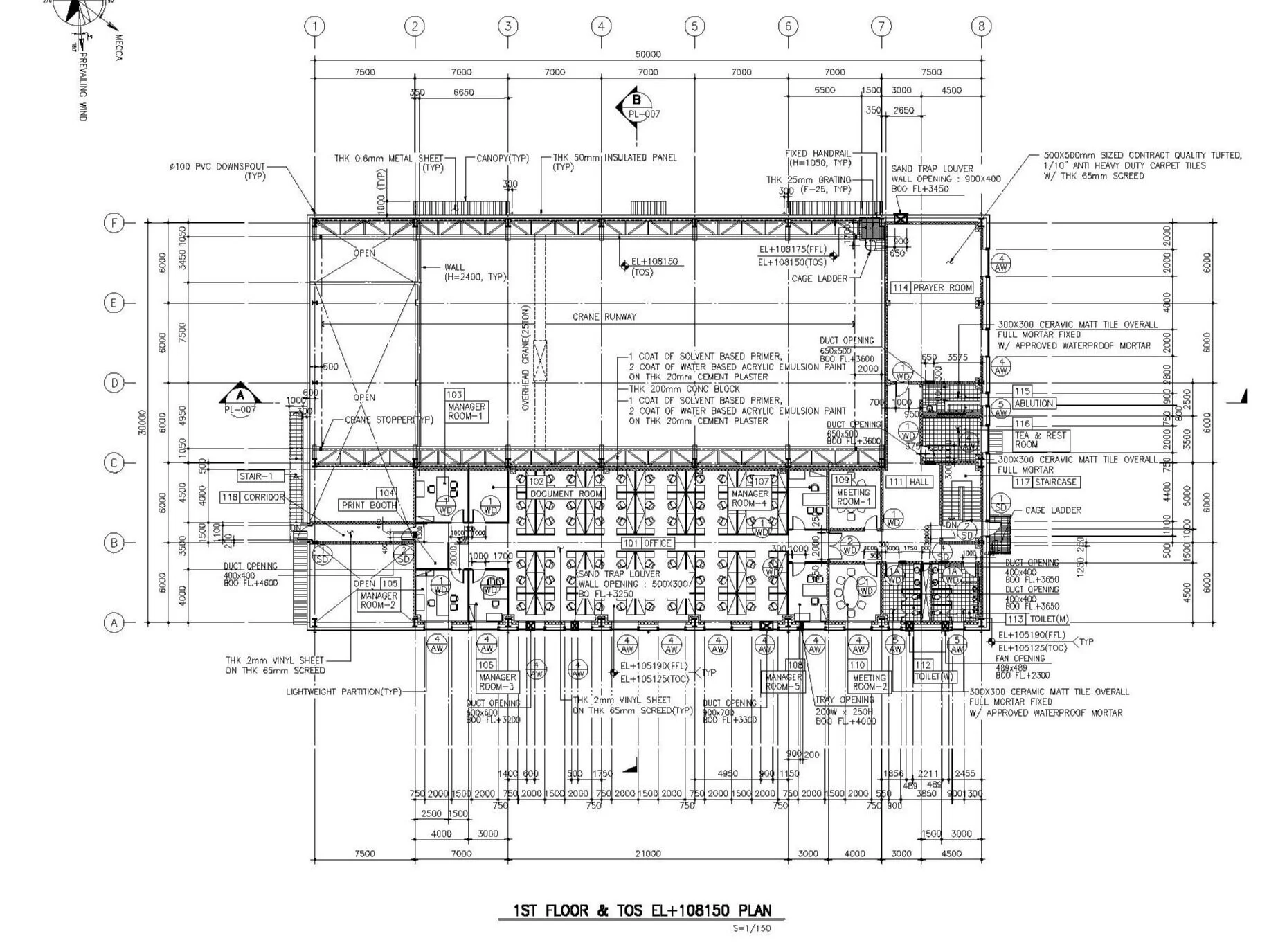
Workshop & Warehouse : PEB

: PEB (Pre-Engineered Buildings) Buildings

Providing complete design of civil, structural and architectural engineering for Non-Process buildings. There required ancillary buildings ( tanks, transformer rooms, etc) and all required permits obtained.

11.png
ALL_WS-page-044.jpg
ALL_WS-page-045.jpg
ws.jpg
ALL_WS-page-046.jpg
ALL_WS-page-047.jpg
ALL_WS-page-048.jpg
Section
wh.jpg
ALL_WH-page-036.jpg
ALL_WH-page-039.jpg
ALL_WH-page-041.jpg
wh.jpg
ALL_WH-page-006.jpg
ALL_WH-page-012.jpg
ALL_WH-page-016.jpg
PEB Building
ALL_WH-page-022.jpg
ALL_WH-page-023.jpg
wh.jpg

Powered by Squarespace.